CHAL
2025
Olten SO
Studienauftrag, selektiv
AWF AG für Wirtschaftsförderung
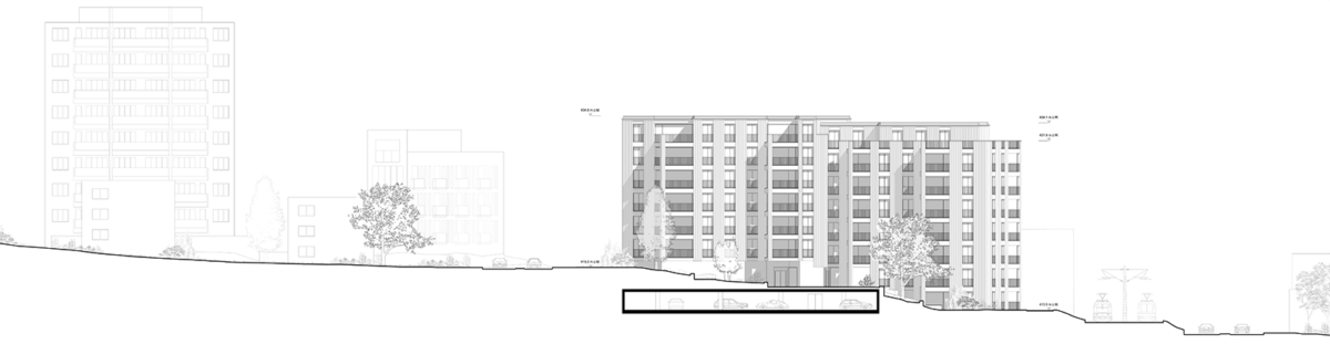
Das Projekt „Tannzapfen“ reagiert präzise auf die komplexe Lage zwischen der SBB Bahnlinie, Hauptstrasse und den angrenzenden Freiräumen. Die Parzelle befindet sich im Übergangsbereich zwischen städtischer Verdichtung und offenem Landschaftsraum – eingebettet zwischen der geschützten Heckenstruktur der westlich angrenzenden Freihaltezone und der grossmassstäblichen Bebauung des Gestaltungsplans „Altmatt“ im Osten. Hier entsteht der westliche Auftakt für die Stadt Olten.
Die städtebauliche Setzung folgt der bestehenden Parzellenstruktur und nimmt zugleich Bezug zum Landschaftsraum auf. Dieser Landschaftsraum bildet einen vorgelagerten Auftakt mittels zwei Grüngürteln, welche parallel zu den neuen Gebäuden stehen. Massstab und Ausrichtung orientieren sich an der Umgebung und übersetzen deren Offenheit in eine präzise städtebauliche Figur.
Eine Bebauung entlang der Strasse wird bewusst vermieden. Stattdessen entstehen durch die versetzte Stellung der Baukörper geschützte Freibereiche, visuelle Durchblicke und sanfte Übergänge. Die Höhenstaffelung und Querbezüge stärken die räumliche Durchlässigkeit und fördern die Verbindung mit dem umgebenden Freiraum. Zudem wird durch die gewählte Setzung der bestehenden Lärmbelastung Rechnung getragen. Dies ermöglicht trotz der verkehrsnahen Lage eine qualitative Wohnlage. Die Ausrichtung und Gliederung der Volumen ermöglichen hochwertige Wohnlagen mit direktem Bezug zur Landschaft. Gewerbliche Nutzungen werden zugunsten des Wohnens zurückgenommen, auch vor dem Hintergrund des bereits geplanten und vorhandenen Angebots im näheren Umfeld.
Der naturnahe, ländliche Siedlungstrenngürtel zwischen Wangen und Olten wird als klimatisch wirksame Kaltluftschneise und landschaftlich prägendes Element in Nord-Süd-Richtung erhalten und durch die Bebauung weiter gestärkt. Die neue Bebauung ergänzt diesen Grünraum und schafft durch eine feingliedrige Durchwegung und die Aufnahme von historischen Gartenstrukturen ein qualitatives Zusammenspiel zwischen dem Wohnquartier und diesem Naturraum. Die neu gebauten Strukturen bilden ein baulich gefasstes Stadttor auf Höhe der Bushaltestelle und markieren den Stadteingang.
2025
Olten SO
Studienauftrag, selektiv
AWF AG für Wirtschaftsförderung