KLARA
2017-2018
Olten SO
Direktauftrag
Privat
Das Doppelhaus ist Teil eines Mehrfamilienhausquartiers mit typologisch ähnlichen Bauten, deren Hauptcharakteristik die farbliche Absetzung der Gebäudehälften ist. Die neoklassizistischen Fassadenelemente wie Eckrisalite, Kreuzstöcke an den Fenstern und das Gesims über dem Sockelgeschoss sind ebenfalls typisch für die örtliche Bausubstanz. Diese quartierspezifischen Eigenschaften wurden ins Projekt übernommen und über den Kontrast von Hauptfassade und additiven Elementen verstärkt.
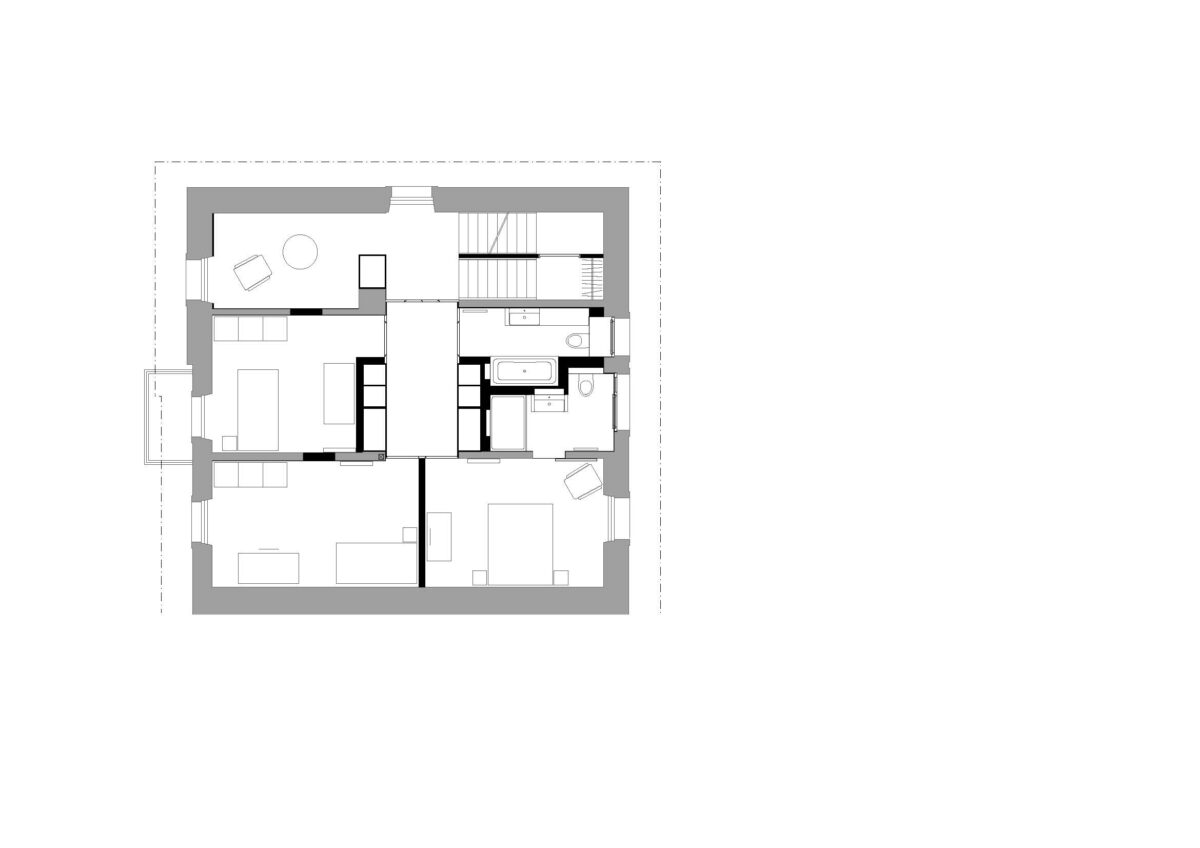
Im Gebäudeinnern wurden die beiden obersten Stockwerke komplett entkernt und saniert. Die Raum-durch-Raum-Erschliessung wurde aufgehoben, um die Wohnung familiengerecht zu gestalten. Zu diesem Zweck wurde zentral im Schlafgeschoss ein Vestibül integriert, das als Ankleide dient und den Zugang zu allen Räumen gewährt. Das Vestibül wird entmaterialisiert und mit einer matten Farbe innenwändig durchgängig gestrichen. Die Fronten nehmen sowohl Schranktüren wie auch Zimmertüren auf, wobei sich letztere nur durch die eigens entworfenen Grifffräsungen von den Schrankfronten subtil differenzieren und so dezent die Zugänge markieren. Im Obergeschoss wurde das komplette Dachgeschoss zu Wohn- und Esszwecken freigespielt. Durch die grosszügigen Lukarnen kann das Dachgeschoss maximal natürlich belichtet werden. Die Abmessungen unterstreichen die Grosszügigkeit des einstigen Estrichs. An der Rückwand nimmt eine als Paravent gefaltete Wand die subsidiären Funktionen Küche, Reduit und WC auf und setzt sich farblich ab.
2017-2018
Olten SO
Direktauftrag
Privat