STAPF
2022
Däniken SO
Studienauftrag, selektiv
Studer Immobilien Treuhand AG
Das Areal für die künftige Wohnüberbauung «Stapfacker» liegt am Siedlungsrand von Däniken und steht in unmittelbarer Nachbarschaft zur Landwirtschaftszone. Die Charakteristik des Ortes ist geprägt durch das Aufeinandertreffen von heterogenen Baustrukturen, Massstäblichkeiten und Baustilen. Die einfache Topografie und die bewirtschaftete Vegetation der heutigen Brache verleihen dem Ort eine besondere Eigenheit. Im Zusammenspiel mit dem nahen Erholungsgebiet ist dieser spannungsvolle Kontext Inspirationsquelle und Ideengeber für die städtebauliche Entwicklung des Areals.
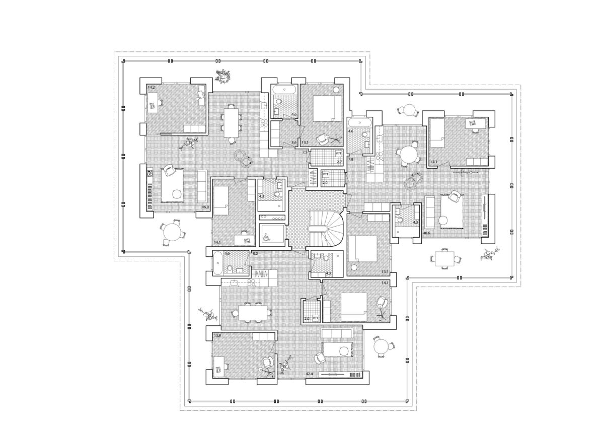
Drei unterschiedlich ausformulierte Gebäudekörper liegen wie Findlingen im Perimeter verteilt. Die orthogonal verschränkten Körper weisen allesamt die gleiche Architektursprache auf, sind jedoch in ihrer Ausrichtung, Zugänglichkeit und Präsenz gedreht, versetzt und spezifisch angeordnet. Was auf den ersten Blick städtebaulich und typologisch eher frei und zufällig zu wirken scheint, erweist sich bei genauer Betrachtung als präzise Reaktion auf die örtlichen Gegebenheiten unter Einbindung der Topografie, der Durchlässigkeit des Aussenraums, einer quartierverträglichen Dichte und einer spannungsvollen Ausrichtung der Gebäudekörper zur Schaffung eines attraktiven Ortes mit eigener Identität und sehr hoher Wohnqualität. Der bestehende, flache Landschaftsraum wird am Ende mit einem markanten Bauensemble strukturiert und findet seinen Übergang in den Siedlungsraum.
Ein Volumen besetzt die Ostseite und bildet somit den Auftakt. Zwei weitere Körper wirken flankierend und spannen somit eine verträgliche wie auch durchlässige Hofsituation auf. Über die Aussenraumgestaltung werden die drei Körper harmonisch in das Quartier integriert. Nach Innen spannt das dreiteilige Ensemble einen mäandrierenden Gemeinschaftsraum mit unterschiedlichen Zonen und Aufenthaltsqualitäten auf. Dabei lassen die aufgebrochenen Ränder Ein- und Ausblicke in den benachbarten Siedlungsraum zu.
2022
Däniken SO
Studienauftrag, selektiv
Studer Immobilien Treuhand AG