VEBO
2020
Solothurn SO
Wettbewerb, selektiv, 3. Preis
Vebo Genossenschaft
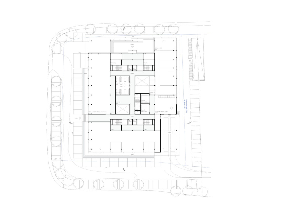
Das Raumprogramm wird in einem kompakten und effizient organisiertem Körper untergebracht, der im Erdgeschoss Einschnitte für den Haupteingang und die Anlieferung aufweist. Die Gebäudehülle wird kompakt gehalten und weist, bis auf die Rücksprünge im Erdgeschoss, eine hohe Durchgängigkeit auf. Das Attikageschoss wird allseitig, symmetrisch zurückgesetzt. dies lässt den Baukörper filigraner erscheinen und sorgt in der Volumetrie des Körpers für eine angenehme Leichtigkeit. Die vorgesetzten Balkone unterstützen die Leichtigkeit, gliedern die Geschosse, sorgen für zugängliche Aussenflächen von sämtlichen Kompetenzzentren und Büros und sorgen vorallem für einen konstruktiven Witterungs- und Sonnenschutz. Dadurch kann mit einer einfachen Methode eine hohe raumklimatische Qualität geschaffen werden.
Der Baukörper ist gegenüber dem massgebenden Terrain um die notwendige Höhe für die Anlieferungsrampe erhöht. Dies sorgt für einen minimaleren Ausbub und eine besser Belichtung des Untergeschosses. Diese Erhöhung wird durch einen an die Fassade getragenen Sockel bewusst abgezeichnet und fundiert den Körper so auch physisch mit dem Terrain.
Der komplette Neubau ist auf einem Raster aufgebaut, der vom Kern bis zur Fassadengliederung Anwendung findet. Um den inneren, zentral liegenden Erschliessungskern, der die unterstützenden, allgemeinen Räume enthält ist eine sehr flexible Nutzfläche angeordnet, die sämtliche Kompetenzzentren und Büros aufnimmt. Die Gliederung der Fläche kann jederzeit den sich verändernden Bedürfnissen angepasst werden. Über einen grosszügigen Haupteingang und einen seitlichen Nebeneingang sind die Treppenhäuser im Kern erreichbar. Vier Treppenhäuser und Lifte erschliessen die Geschosse, was eine einfach Zugänglichkeit der Kompetenzzentren ermöglicht und der Flexibilität in der Raumeinteilung zuträglich ist. Alle Geschosse funktionieren nach demselben Prinzip.
Zwei durchgängige Lichthöfe sorgen für Tageslicht innerhalb des tiefen Baukörpers. Um die Lichthöfe sind die Aufenthaltsbereiche angeordnet. Dies schafft qualitätsvolle Räume die zum Austausch und treffen einladen, unweit der Arbeitsstelle und einfach zugänglich. Der Kern nimmt ebenfalls die Garderoben, WCs und Warenlifte auf. Die Wege bleiben kurz und übersichtlich.
2020
Solothurn SO
Wettbewerb, selektiv, 3. Preis
Vebo Genossenschaft