WERA
2020
Amriswil TG
Wettbewerb offen, 2. Preis
Tiefbauamt Kt. Thurgau
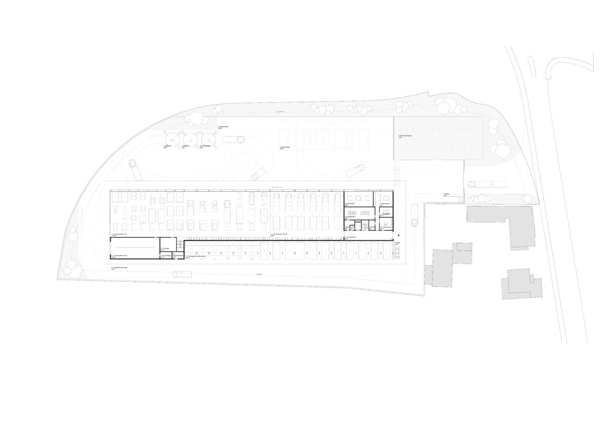
Die Kubatur des neuen Werkhofs ist einerseits dem von Industrie- und Gewerbebauten geprägten Kontext südlich der neu geplanten Bodensee-Thurtalstrasse entlehnt und entwickelte sich andererseits aus dem funktionalen Bedürfnis nach möglichst viel Erdgeschoss-Nutzungen. Das Raumprogramm wird mittels einer alles überspannenden Halle umgesetzt, in der die einzelnen Funktionen untergebracht werden. Das gewählte Mass der Halle fasst die hohe Fahrzeughalle elegant mit der niedrigen zusammen und integriert ebenfalls im gleichen Massstab die Büroräumlichkeiten und Nutzungsräumen wie Rapportraum, Garderoben und Lager. Je nach Nutzung unterscheidet sich die Geschosszahl in den verschiedenen Bereichen der Hallen.
Die Halle wird zwischen zwei fest verankerten Betonkernen aufgespannt. Dem westlichen Betonkern wird die Funktion des Fahrzeugwaschraums einbeschrieben. Kopf der Anlage bildet der östliche Kern. Dieser nimmt sämtliche unterstützenden Räume wie Garderoben, Büro, Rapportraum etc. auf. Diese beiden Kerne werden über eine Wandscheibe miteinander verbunden. Diese Wandscheibe wird als Rückgrat der Anlage ausgebildet, um den beheizten/temperierten Teil vom unbeheizten Gebäudeteil zu trennen. Südlich dieser Wand befindet sich die Fahrzeughalle mit den Geräten für den Winterdienst und funktioniert so ganz unabhängig von der temperierten Fahrzeughalle.
Das grossformatige Gebäudevolumen wird durch das umlaufende Vordach sowie den leichten Knick im Dach in seiner Massivität etwas zurückgenommen und den örtlichen Verhältnissen angepasst. Es entsteht eine funktionale, gut organisierte Halle mit einem zeitgemässen Erscheinungsbild.
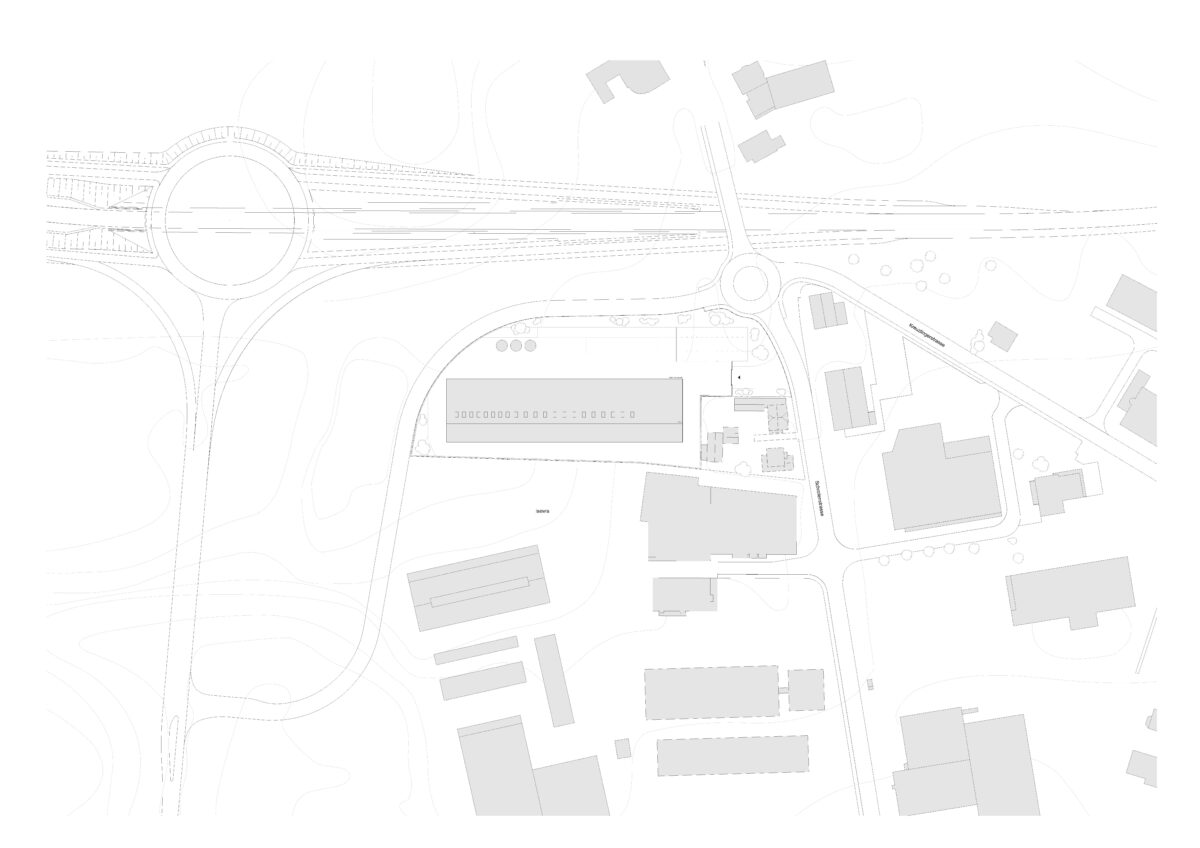
Der Neubau entwickelt sich entlang der südlichen Parzellengrenze und besetzt beinahe die komplette südliche Parzellenfläche. Nördlich des Werkhofs spannt sich der Vorplatz mit grosszügigen Dimensionen auf. Über das auskragende Vordach wird die Halle funktional wie auch optisch an den Vorplatz angebunden.
2020
Amriswil TG
Wettbewerb offen, 2. Preis
Tiefbauamt Kt. Thurgau